Lejlighedstyper
I Frydenspark har vi 17 forskellige lejlighedstyper. Her er tre af demEn lejlighed til ethvert behov
I Frydenspark har vi mange forskellige lejlighedstyper, som alle passer til forskellige formål og budgetter. Vi har alt fra små hyggelige 1-værelses lejligheder, nogle med kanap, til lidt større 2-værelses lejligheder når behovet vokser og til de helt store 3-værelses lejligheder hvor pladsbehovet er større og familien er vokset.
Huslejen reguleres løbende og er i den lavere ende for niveauet på Amager.
I oversigten herunder kan du se forskellige lejlighedstyper, som Frydenspark råder over. Her fremvises blandt andet en 1-værelses lejlighed med kanap, en 2-værelses lejlighed og en 3-værelses lejlighed. Alle lejemål er nyrenoverede og vist frem før beboerne er flyttet ind.
Hvis du kunne tænke dig at skrive dig op til en ledig lejlighed, så kan det gøres via adminstrator her: www.DabBolig.dk
Lejlighedstyper
Alle plantegninger
Her kan du se de forskellige lejlighedstyper i Frydenspark.
Oversigten er sorteret efter størrelsen på boligen, så du hurtigt kan finde de plantegninger, der passer til dit behov.
Små lejligheder (op til 55 m2):
47-48 m2: Boligtype B (bh111a)
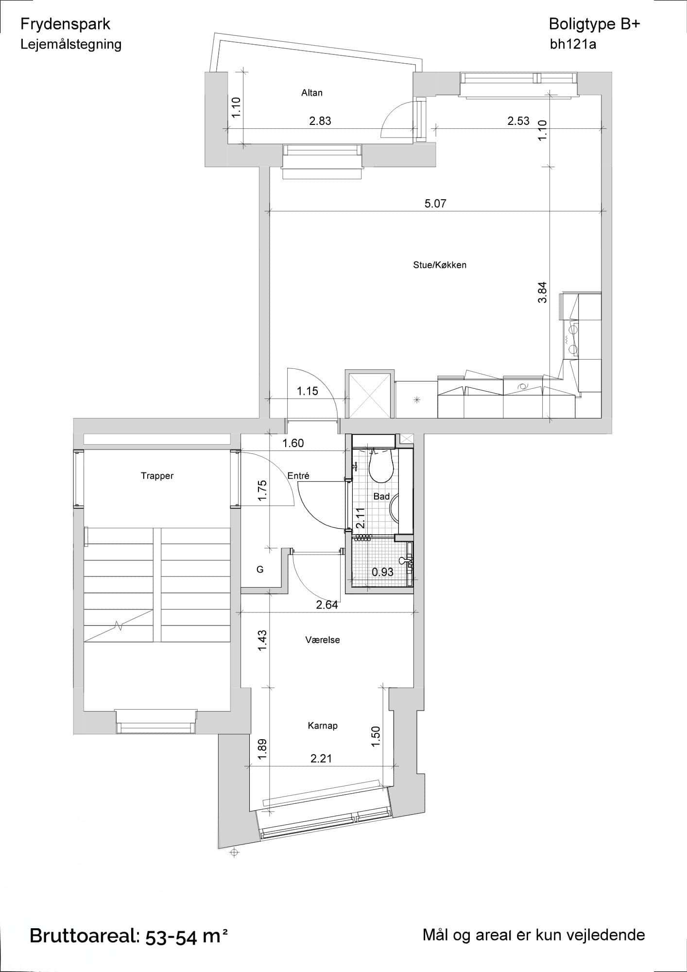
53-54 m2: Boligtype B+ (bh121a)
Mellemstore lejligheder (60-69 m2):
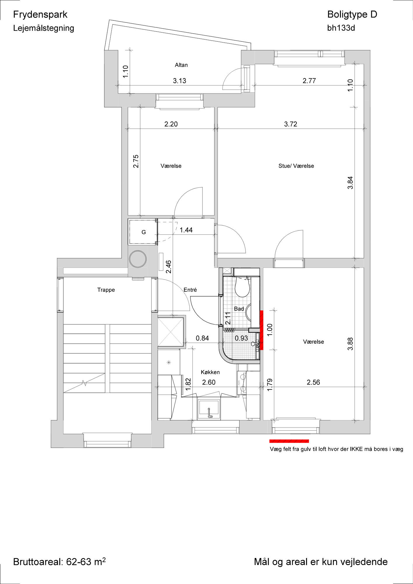
62-63 m2: Boligtype D (bh133d)
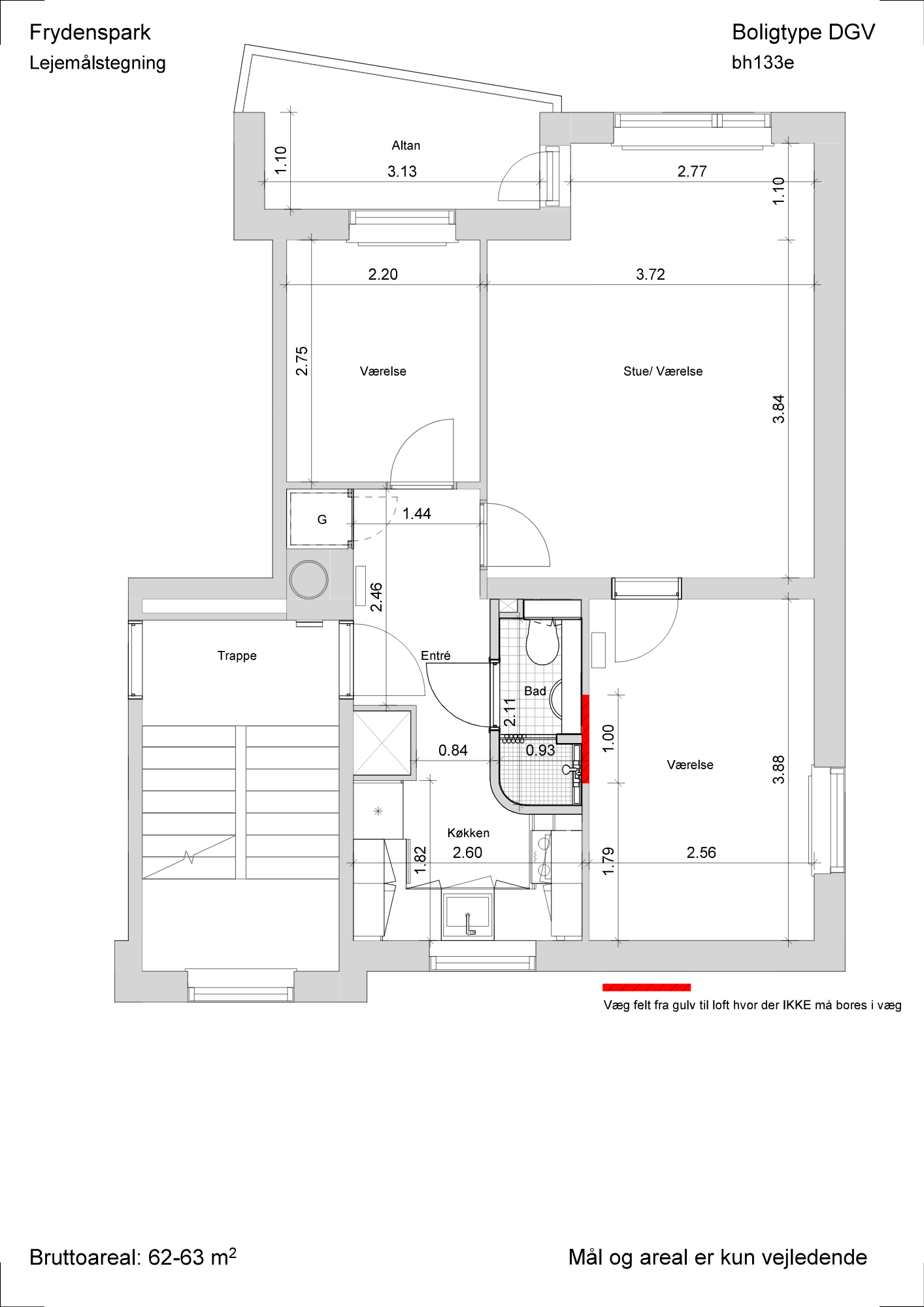
62-63 m2: Boligtype DGV (bh133e)
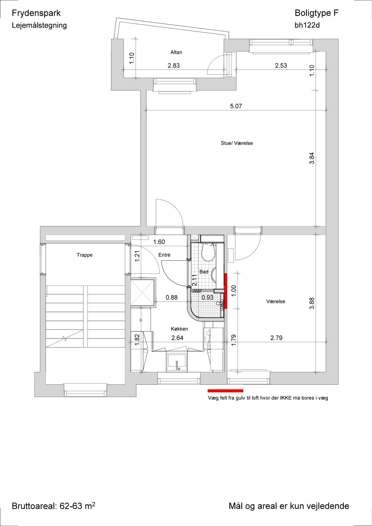
62-63 m2: Boligtype F (bh122d)
62-63 m2: Boligtype FGV (bh122e)
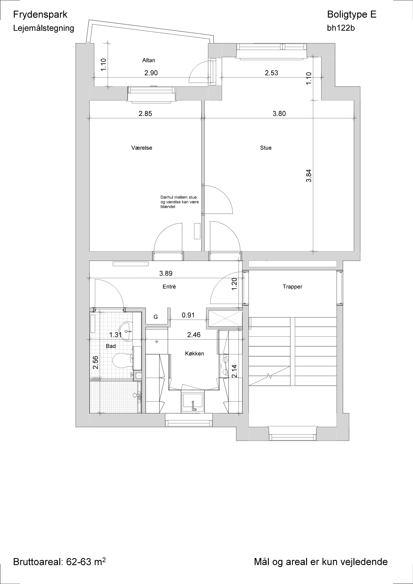
62-63 m2: Boligtype E (bh122b)
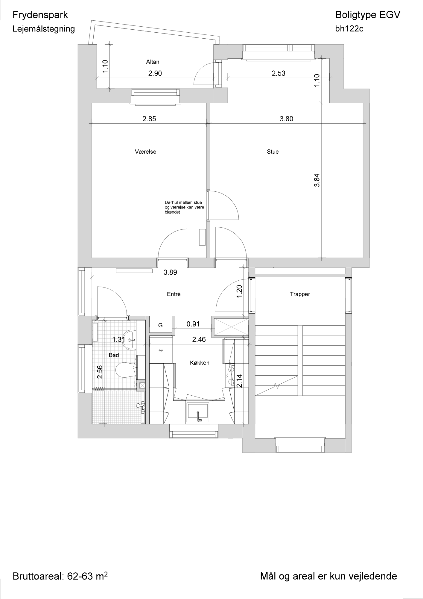
62-63 m2: Boligtype EGV (bh122c)
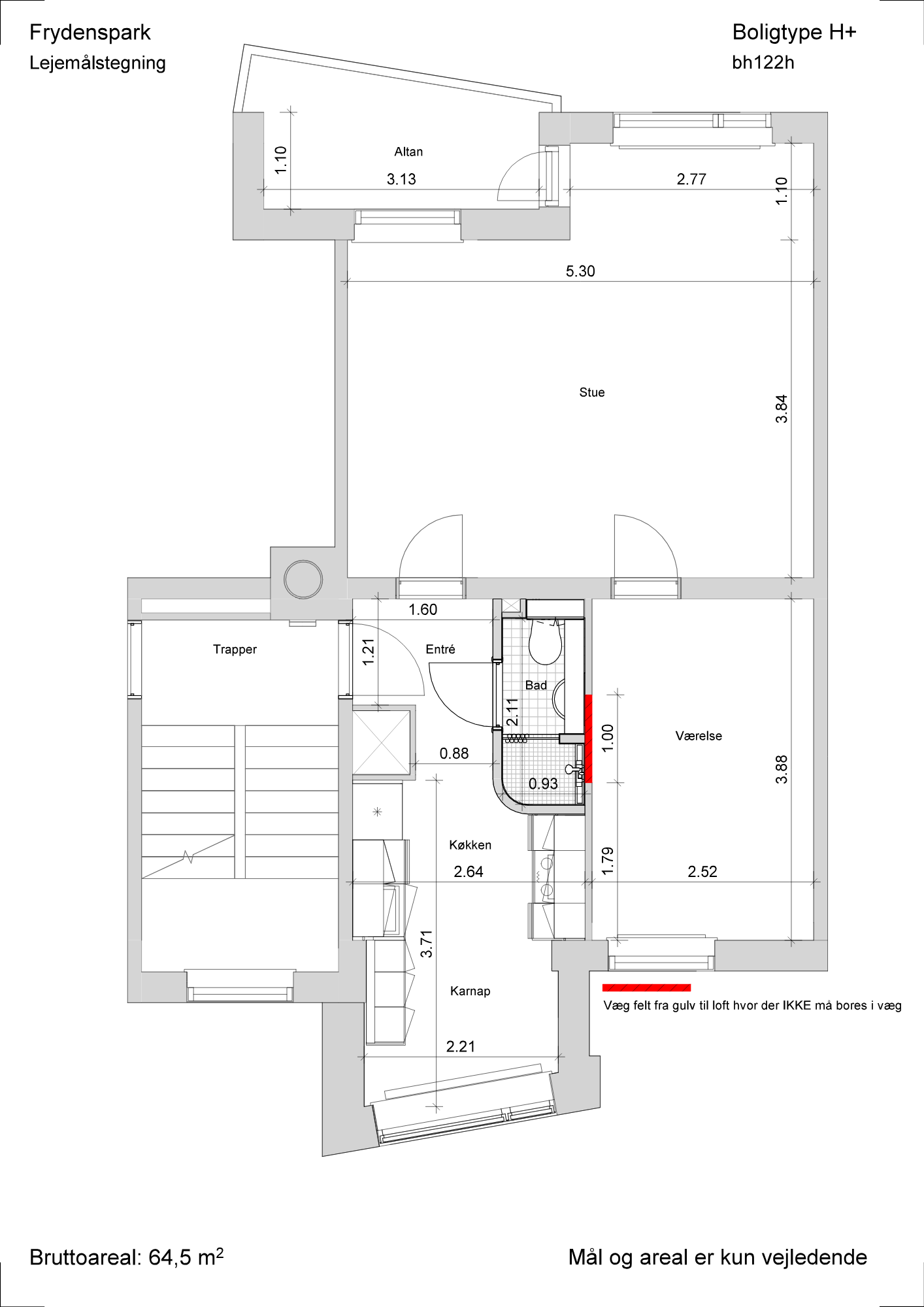
64,5 m2: Boligtype H+ (bh122h)
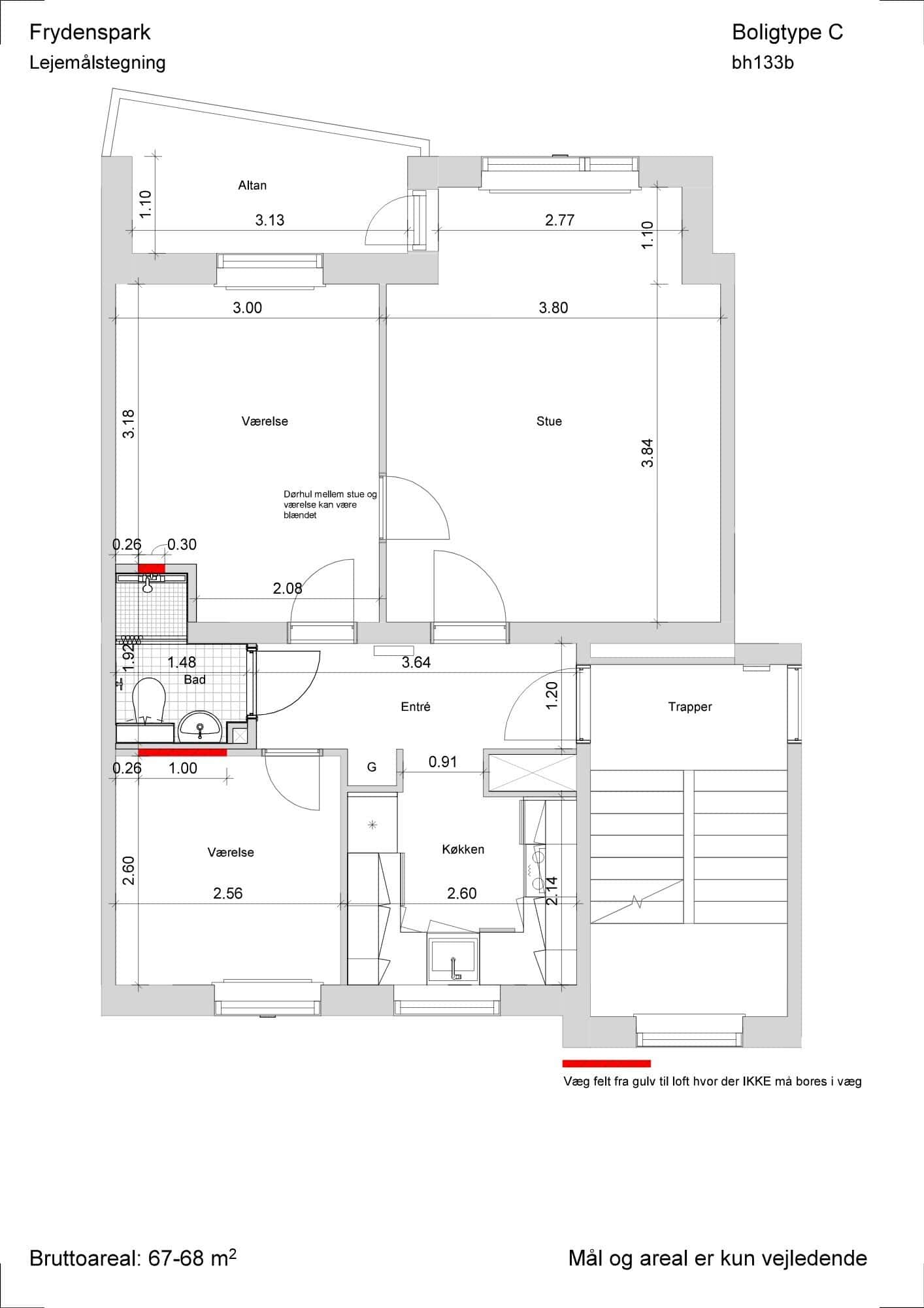
67-68 m2: Boligtype C (bh133c)
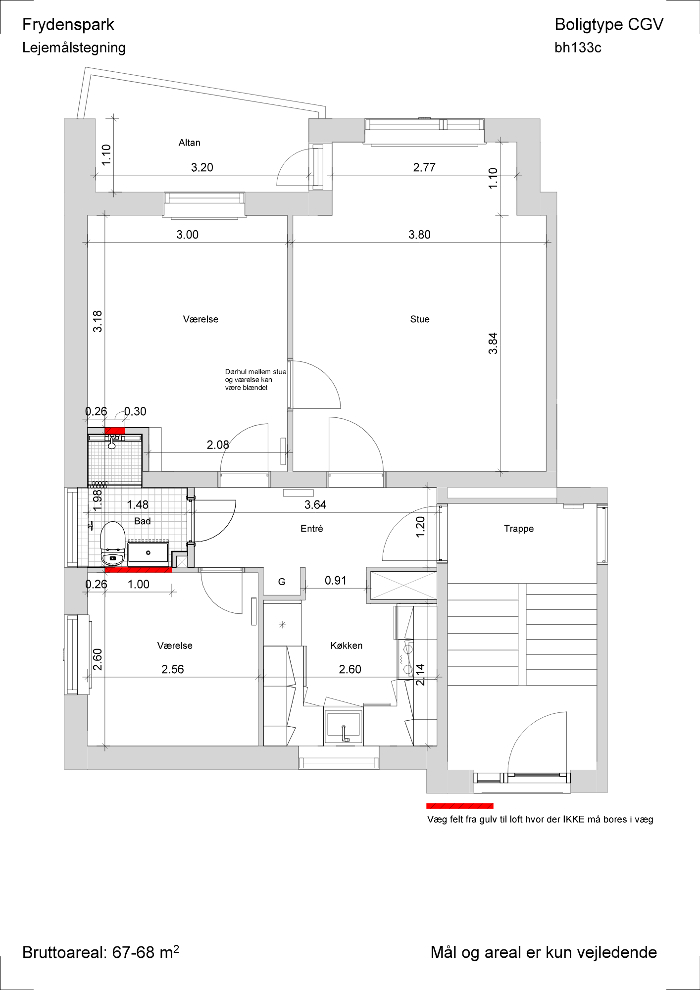
67-68 m2: Boligtype CGV (bh133b)
67,6-68,2 m2: Boligtype D+ (bh133f)
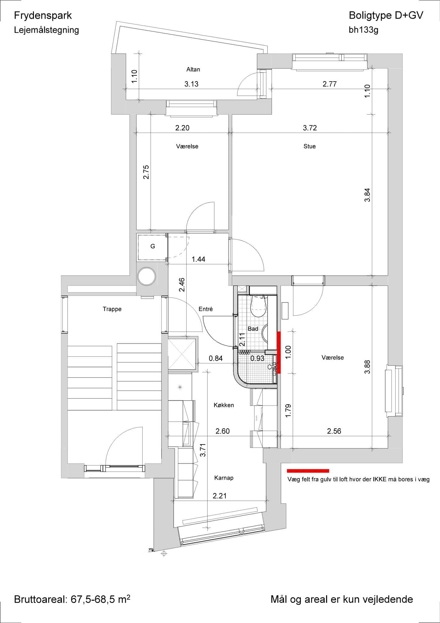
67,6-68,6 m2: Boligtype D+GV (bh133g)
68-69 m2: Boligtype F+ (bh122f)
68-69 m2: Boligtype FG+V (bh122g)
Større lejligheder (70+ m2):
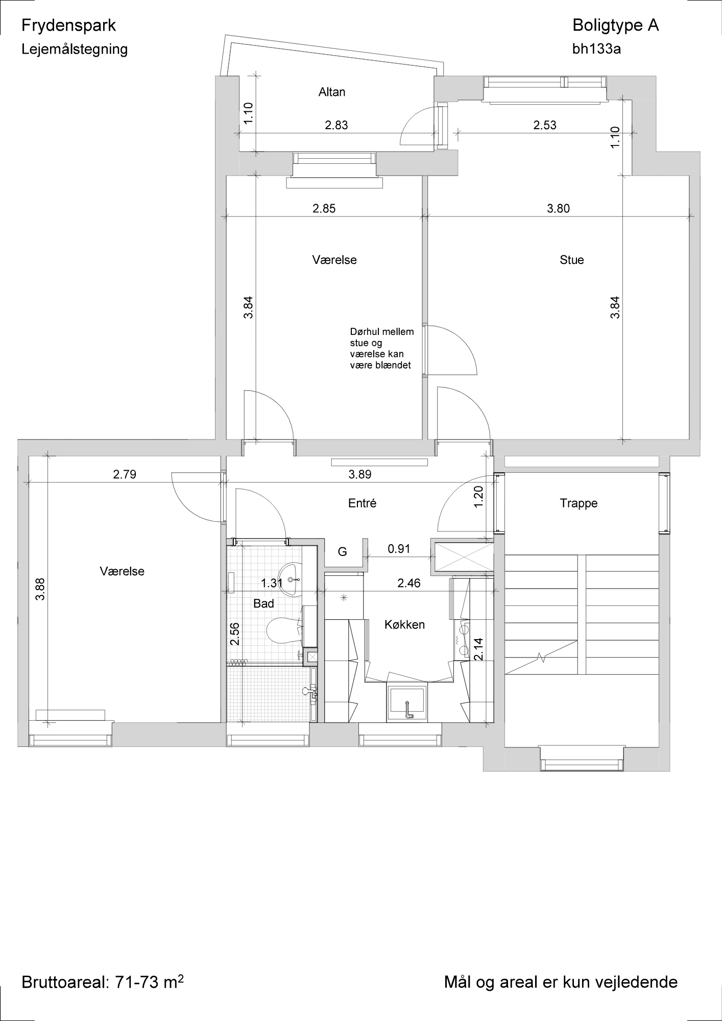
71-73 m2: Boligtype A (bh133a)
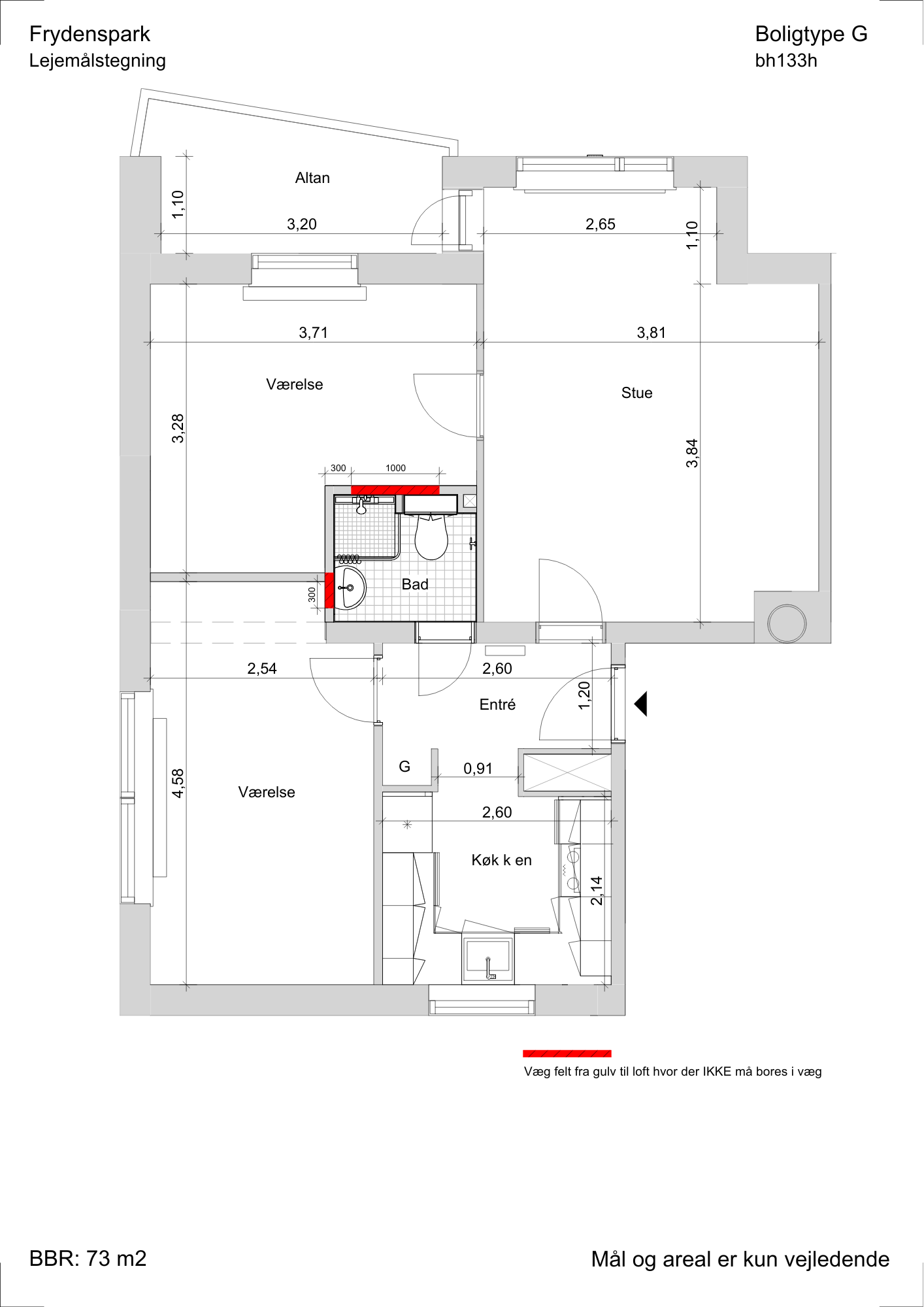
73 m2: Boligtype G (bh133h)




